
O projektu


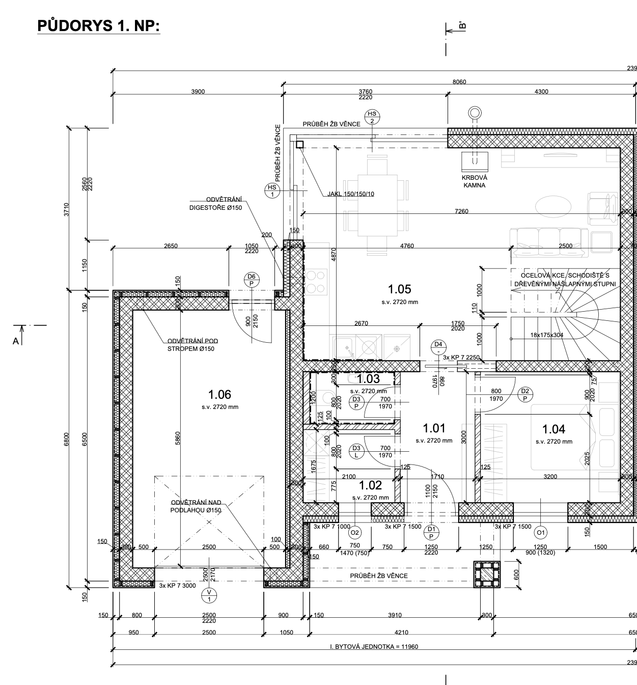
Přízemí
V přízemí této bytové jednotky najdete dobře navržený prostor s praktickým uspořádáním. Při vstupu vás uvítá spojovací chodba, která vás zavede do prostorného obývacího pokoje. Tento útulný obývací pokoj je propojený s moderní kuchyní, která disponuje také šikovným špajzem. Obývací pokoj nabízí přímý vstup na terasu, kde můžete relaxovat a užívat si venkovního prostředí. Vedle obývacího pokoje se nachází prostorný pokoj pro hosty, který poskytuje pohodlné ubytování pro vaše návštěvy. Kromě toho je v přízemí k dispozici samostatná toaleta a technická místnost, která slouží jako praktické místo pro úložné potřeby a údržbu domácnosti. Celkově dispozice přízemí poskytuje harmonické spojení mezi jednotlivými místnostmi a zajišťuje pohodlí a funkčnost pro každodenní život.
První patro
V prvním patře této bytové jednotky se nachází hlavní ložnice, dva dětské pokoje a koupelna spojená s toaletou. Koupelna je vybavena jak sprchovým koutem, tak vanou, což poskytuje flexibilitu a komfort pro celou rodinu. Hlavní ložnice nabízí možnost přístupu na budoucí terasu, která může být vybudována nad garáží, což dodává prostoru další úroveň luxusu a soukromí. Tato terasa bude ideálním místem pro ranní kávu nebo večerní relaxaci. Dispozice prvního patra je promyšlená tak, aby poskytovala dostatek prostoru a soukromí pro všechny členy rodiny, zatímco propojení koupelny s ložnicemi a dětskými pokoji zajišťuje maximální pohodlí a praktičnost.

Energetická náročnost a vybavení
Tento rodinný dům je navržen s důrazem na energetickou úspornost, což se projevuje nižšími provozními náklady. Krbová kamna, rekuperační systém, tepelné čerpadlo, podlahové vytápění a okna s trojskly zajišťují příjemné a útulné prostředí. Podlahy z dřevěných lamel nebo kvalitního, odolného vinylu a keramické dlažby v koupelnách a toaletách dodávají domu elegantní a moderní vzhled.

Exterier
Exteriér této bytové jednotky je navržen s důrazem na moderní a elegantní vzhled. Dům má dvě podlaží a připojenou garáž, která je obložena dřevem, což dodává celkové estetice příjemný přírodní prvek. Střešní krytina je v elegantním antracitovém odstínu, zatímco fasáda domu je zářivě bílá, což vytváří krásný kontrast a moderní vzhled. Zahradí část má kompletní příprava pro další dostavby. To zahrnuje možnosti jako sauna, bazén nebo zahradní domek, což poskytuje flexibilitu a možnosti pro budoucí rozšíření a zlepšení venkovního prostoru. Z 506 m² pozemku je 100 m² zastavěných a 74 m² zpevněné plochy pro příjezdovou cestu a chodníčky, což zajišťuje snadný přístup a dostatek prostoru pro parkování a pohyb kolem domu. Tento dobře promyšlený exteriér zajišťuje, že dům nejen vypadá atraktivně, ale je také funkční a připravený pro budoucí rozšíření.
Technická dokumentace




Připraveno k nastěhování
Aktuální stav



